Kolonto: Adaptive Reuse of Amin Jute Mills Complex

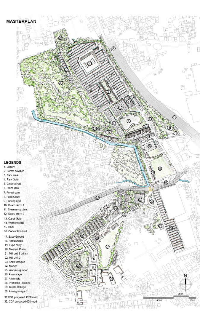
Amin jute mills complex is a 72-year-old abandoned mill in Sholoshohor, blocking the connection between 7 neighborhoods, this project aims to find a use for the mill complex while serving the urban need of the locality,
Share on facebook
Facebook
Share on twitter
Twitter
Share on linkedin
LinkedIn

Designer(s) : Junaed Md Abu Saif

University : North South University

Tutor(s) : Ismat Hossain

Project Description

Amin Jute Mill is a government owned jute mill complex located in Sholoshohor, Chittagong. The mill was originally established by Maulana Amin, a Pakistani millionaire in 1954. Within 17 years the mill grew and eventually formed a large worker’s community making a local name for the site which it still carries ‘Amin gate’.After the independence in 1971, the site was taken as enemy land and went under the newly formed Bangladesh Government. The mill kept on running under the supervision of BJMC and the community continued to grow out of the site. In 2020, all government Jute mills were decommissioned and today a part of the 70-year-old site is abandoned. Soon after the decommission most of the workers migrated out and with the mills closed, the site is now quiet, lifeless, and purposeless. Although the complex was constructed outside of the city back in 1954, today the city expanded and the settlements around the site are surrounded from all four sides. Within this gray jungle, the site stands with 80 acres of breathing green topography. Now abandoned and with no plans declared by the government, the site is waiting to be taken over by the surroundings to construct residential and commercial buildings, robbing the neighbor of the only chance of having a green space in the context. Sholoshohor is an area where civil amenities and green open spaces for the public are absent. This gives the project the perfect opportunity to repurpose and rethink the area for public use. This project aims to revive this abandoned site with robust urban energy serving the surrounding neighbor’s needs through adaptive reuse and repurposing of the jute mill complex.