The Logistic Platform

The project expresses a proposal of a modular and automated warehouse building that reflects to the latest trends and changes in E-commerce and digital economy. as an architectural reaction to the huge tech bomb and digital transformation by taking advantage of the [AI] and [IOT] technologies.
Share on facebook
Facebook
Share on twitter
Twitter
Share on linkedin
LinkedIn

Designer(s) : Mohammed H Dulaimi

University : Philadelphia University - Jordan

Tutor(s) : Afnan Saleh

Project Description

Project idea:

Everything is transforming into the digital and electronic world, and cities must be optimised to provide a suitable set for this transformation. Technology is developing rapidly and pulling cities to their destination. Industry and economy are changing by that transformation; the typical economy is no longer enough, and a new type of economy has popped up lately – The Digital Economy. It has become the most critical driver of innovation, competitiveness and growth and holds enormous potential for entrepreneurs and small & medium-sized enterprises. But unfortunately, a tiny per cent of the Jordanian and MENA zone people are taking advantage of the digital transformation in the economy.

The project exercises the needs revealed after transforming the typical pattern of human life into a data and digital pattern.

While the digital transformation continues, the (E-activities) keep rising, especially e-commerce and online trading. This activity has been viral in the past few years, not even for the major stores and companies but even the individuals.

Commerce and typical trading are now from the past; every store/shop is now transforming into an e-commerce form to keep itself in the market.

While the shape and method of the action (Trading) are optimised, the space it processes in must be optimised too. This project’s main objective was to develop new optimised warehouse buildings considering the technical bomb and the latest innovative software/devices such as the IOT and AI technologies.

Project description:

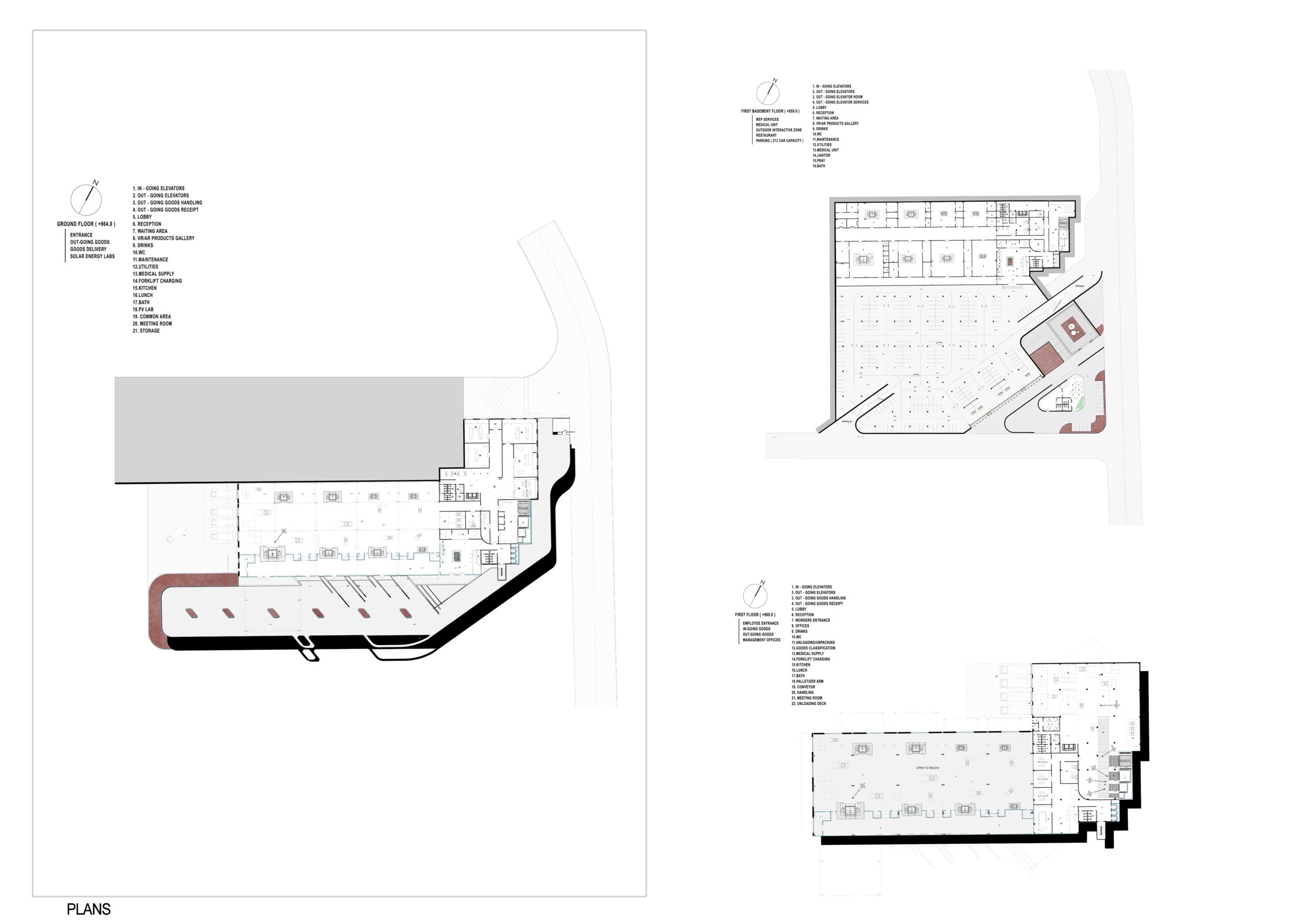
The project consists of a several elements : 1- lower floors ( entrance zone connected to the out-going zone where products are moved from the storing units into that zone by special lifts then get delivered and shipped , a solar labs zone to manage the pv cells systems on the southern elevations  , maintenance floor at the first basement along to the parking area ) 2- floated administrative offices volume between the upper platform  level and the lower floors .3- the platform floor that consists of : a- particular handling arm robot , that transform products from the lifts to the main track ,b- the main track that distribute the products form the lifting elevators , this track have fixed carriage on a moving belt/rollers that will transfer products to the suitable warehouse unit through a unique intelligent management system using artificial intelligence an internet of things , c- the warehouse units and their special elevators that move vertically to send products to the delivery floor at the ground level and also move the items to the horizontal moving system that located in each of the warehouse units .

Technical description:

A group of (8) auto vertical warehouse units in different sizes to store different sizes of items and products. These warehouse units are constructed by stacking a smaller module unit that can be stacked as desired and work effectively.

Each unit has a separate goods elevator that connects the upper level (the platform) where the items encounter the units with the out-going products delivery level (on the ground floor), where people can receive their items or proceed for shipping trucks.

The goods reach the upper level (the platform) using a special elevators system of different sizes to serve different types of products, these elevators are connected on the lower levels with the goods unloading level, where goods/products are unpacked/repacked and categorised in specific coding system, so the special handling devices that use AI and IOT can define them correctly and transfer them as it should.

The platform contains the main track to distribute the lifted items (by the in-going elevators) to the different stations/units. Innovative handling units will transfer the items/goods from the elevators to the track and reverse.

While the project is a kind of machine, the site was divided into Non-Human and Human zones; the non-Human is the warehouses and all the structure and space enclosed, and the Human is the parts that are lower and nearest to the ground (Offices, Delivery zone, Outdoor Exhibition, Restaurant).

Though the design approach is ‘Architecture as A Machine ‘, each part of the project can be removed, replaced, & expensed. Particular steel structures (steel boxes) are used in the warehouse units with fire-efficient steel material to decrease the fire hazard; also, these units’ outer walls can be removed to provide maintenance accessibility to the vast interiors of the storage units.

The platform consists of a series of slab elements, creating a removable platform to provide area and space to the special cranes and challenging fire/maintenance situations in the units and the higher levels.

Recycled light metal sheets cover the warehouse units, providing a re-use feature if the units are scaled.

The office’s volume was ordinary and ‘Human ‘in each material and design, with glazed walls with louvres. This volume is floating between the on-going platform and the upper platform.