University : Cairo University - Factually of Engineering
Tutor(s) : Dr Karim Kessieba - Dr Sherif Morgan
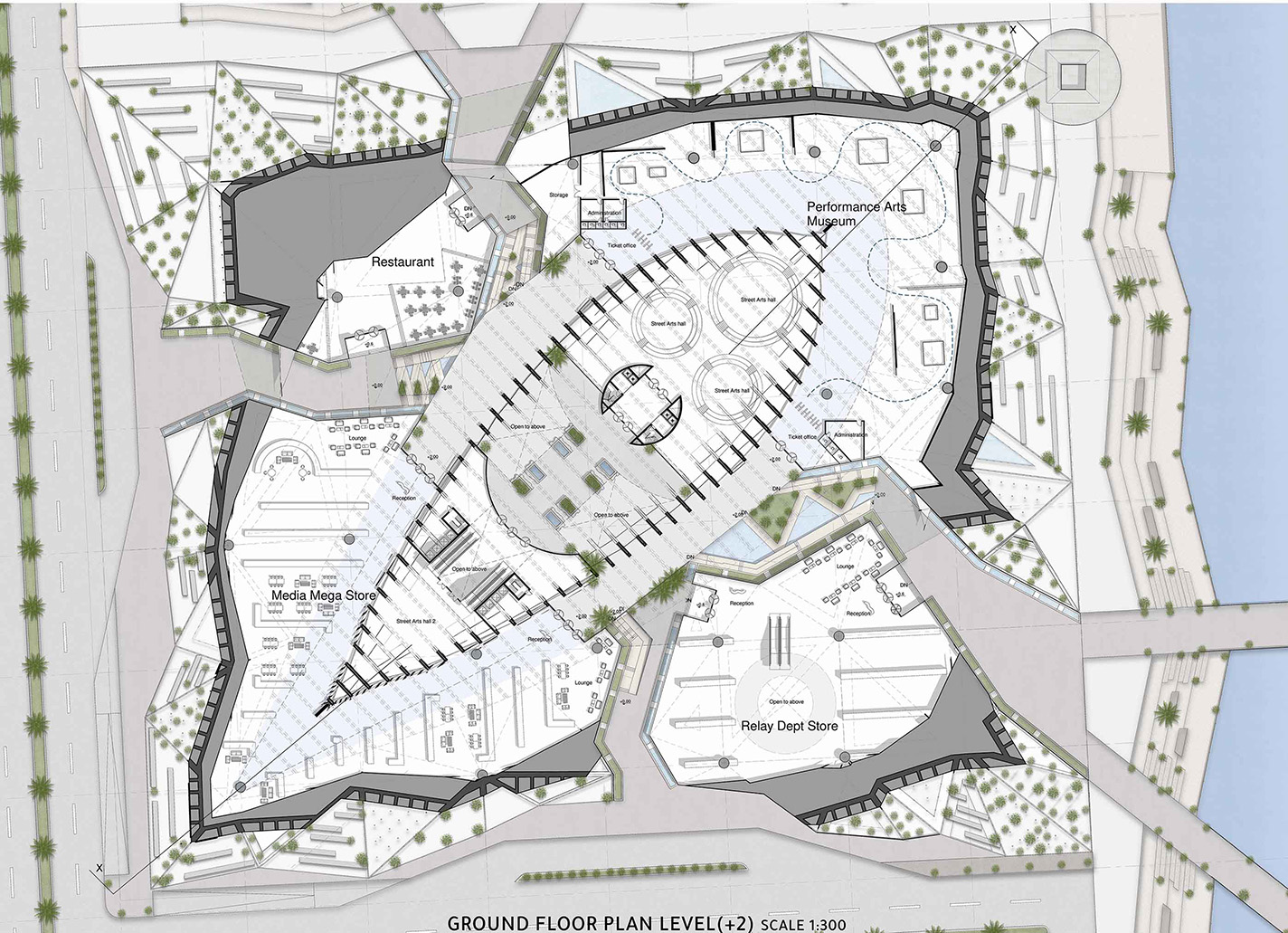
Project Description
The Graduation Project’s central theme explores architectural crises, particularly the issue of identity loss. Port Said, chosen for its unique character and rich history despite its relatively recent founding 160 years ago, revealed a distinct folk art known as ‘Semsemiya’ through extensive city research. This living art form documents Port Said’s history and unique traits, including the Bambini profession, ultimately serving as an artistic representation of the city’s original identity.
Thus, the vision statement became, “This project is a crisis of losing the national identity of the city of Port Said through folk art.” And since the city of Port Said, a coastal city overlooking the multicultural Mediterranean Sea, therefore, the project began to discuss the crisis for all countries of the Mediterranean, so the Mission statement became assimilated by the phrase” The project is an international cultural forum for folk art that addresses the issue of lost identity to exchange and encourage cooperation between cultures of Mediterranean countries promoted through folk art. wandering fleet through authentic Mediterranean peoples that celebrate their co-existing culture Given the focus on coastal countries, the concept can be succinctly stated as: “The project is a wandering fleet through authentic Mediterranean folks that celebrate their co-exists culture.”
The project’s name, “Folk فٌلك” now carries a dual significance, divided into two parts with distinct meanings. In Arabic, “فُلك”signifies “ship,” symbolizing the sea that links all Mediterranean countries. Similarly, in English, “Folk” represents folk art, a medium through which lost traditions and hobbies come to life.
The Form Generation process is a sculptural representation of the project’s concept, involving several key steps:
Site Assessment: The initial phase involves a thorough examination of the project site. Component Setup: The second step encompasses the arrangement of the project’s main components and the initiation of its pathways.
Wave-Inspired Abstraction: In the third phase, an abstract representation of sea waves with a fracture element was created. This design element vividly illustrates how the pathways intersect the building, resembling a fragmented crack. This symbolism reflects the infiltration of art into an indifferent society that has little regard for artistic expression. Fleet-Inspired Abstraction: The fourth step involved an abstract representation of fleet ships, and the primary building was designed in the shape of a ship. ىCombination of Concepts: In the final step, the concepts from the third and fourth phases were merged, resulting in the project’s current form.
This multi-step approach has contributed to the project’s unique and meaningful design.
Structure: The building not only assumes the shape of a ship but also features a unique structural design. The structure is divided into two parts: the ship section, composed of double ribs measuring 30 cm with a 10 cm gap between them, repeated every 3 meters, and connected by main steel beams with a depth of 1.5 meters supporting precast lab slabs. The second part, known as “the crack,” comprises a waffle slab with a depth of 1.5 m, allowing for the use of a green roof. This slab is supported by grid columns spaced at 24- meter intervals.
The project’s landscape concept revolves around a gradient of colours. It begins with white, transitions into green, and finally transforms into blue, symbolizing the water surrounding the building structure resembling a ship.
Established in 2012, Tamayouz Excellence Award is an unaffiliated, independent initiative that aims to advance the profession of architecture academically and professionally. Tamayouz is dedicated to supporting aspirational and transformative projects that tackle local and global challenges and that are informed by a holistic understanding of context.